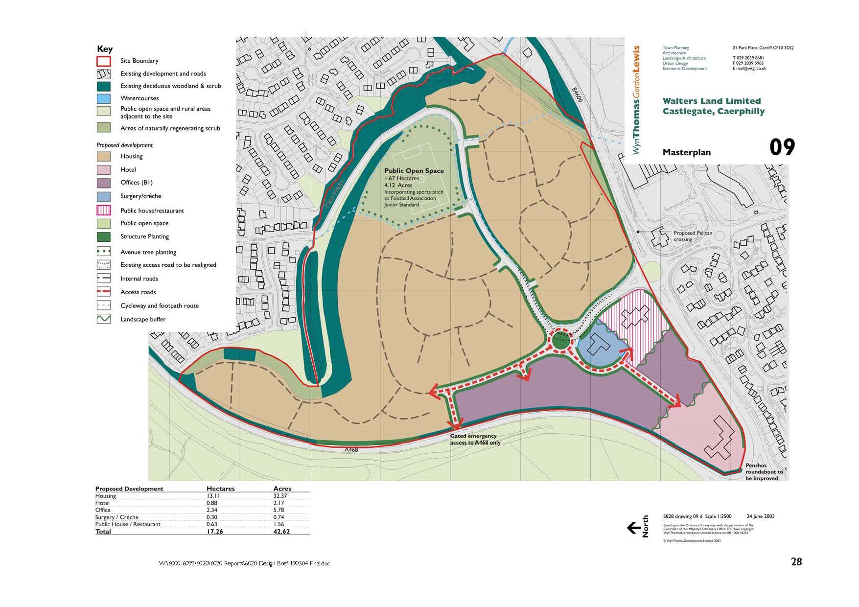
In December 2002, Walters Land purchased approximately 60 acres of brownfield land in Caerphilly. The site is located at the junction of the A468 Caerphilly by-pass and the B4600 Nantgarw Road. Between 1947 and the late 1970’s the site was used to landfill a range of materials including colliery spoil, ash from power stations, quarry and chemical wastes and other deposits such as rubber, glass and paper.
A detailed site investigation, including soil and groundwater sampling and testing together with ground gas monitoring was conducted in the early part of 2003. A robust remediation strategy was designed to ensure that the site would be rendered fit and safe for residential and commercial development.
A comprehensive Environmental Impact Assessment was undertaken by a team of highly qualified technical experts. Following submission of the technical reports to Caerphilly County Borough Council and other regulators, an outline planning permission was obtained in December 2003. After implementation of the required site remediation and reclamation works, new roads and services were built to accommodate the proposed mixed end use development, known as Castlegate.
The construction of housing commenced late in 2004 and today well over 500 residential units have been built by Bellway Homes, Persimmon Homes and Llanmoor Homes. United Welsh Housing Association who were the affordable housing providers constructed houses and apartments as well as a multi storey Care Home.
In addition to the housing, there are successful commercial properties including a supermarket, an hotel, a public house and restaurant, a medical centre complete with a pharmacy and several office buildings. Large areas of public open spaces and playing fields have also been provided.
The Castlegate development has been a great success, giving the new residents a community in which people can enjoy living, working and being able to utilise the surrounding open spaces and nearby amenities.
The development is a pioneer in providing an in-ground gas and vapour barrier. It is one the UK’s first developments to have such a bespoke and individually designed/constructed system.









